3023 DJ Rotterdam
Rochussenstraat 369-A
€ 775.000 k.k.
BeschikbaarOver deze woning
Dit prachtige 4/5-kamer appartement aan de Rochussenstraat 369-A in Rotterdam biedt niet alleen een ideale locatie, maar ook een adembenemend uitzicht op het voorgelegen water. Gelegen in de gewilde wijk Oud-West, bevindt u zich op slechts enkele minuten van het bruisende stadscentrum, terwijl u geniet van de rust en het serene uitzicht over het water. Dit maakt uw nieuwe thuis niet alleen bijzonder, maar ook een oase van rust in de stad.
Binnen enkele minuten bent u in het centrum van Rotterdam, met een overvloed aan winkels, restaurants, cafés en culturele hotspots.
Het openbaar vervoer en de snelwegen liggen op korte afstand, zodat u snel overal bent, of u nu naar het werk gaat of de regio verkent.
De wijk Oud-West biedt een bruisende sfeer, met lokale markten, gezellige cafés en parken in de nabije omgeving. Hier woont u in het hart van de stad, maar met de rust van een groene omgeving.
Dit appartement biedt alles wat u zoekt: een moderne afwerking, een ideale locatie, en een prachtig uitzicht op het water. Het is een unieke kans om te wonen in een van de meest gewilde buurten van Rotterdam, met de perfecte balans tussen stadse energie en rust.
Indeling van het appartement:
Begane grond: Entree, trapopgang naar de verdiepingen.
Tweede verdieping:
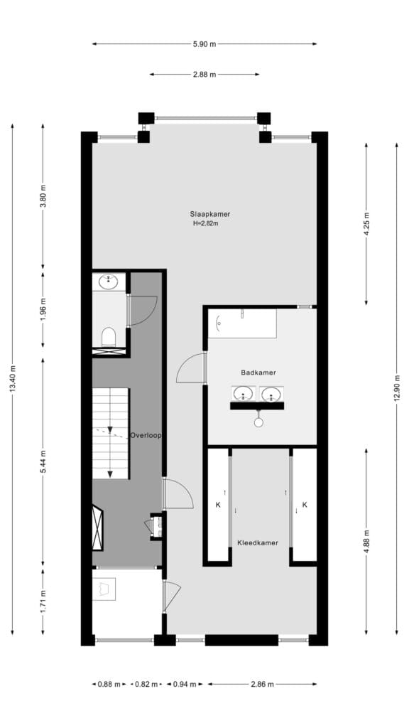
Overloop met een moderne toiletruimte en meterkast. Doorloop naar de ruime slaapkamer met een tussengang welke toegang biedt aan de ruime moderne badkamer en de achtergelegen kleedkamer. De badkamer is voorzien van een ligbad; 2x moderne wastafels en een ruime inloopdouche.
De kleedkamer is voorzien van vaste kasten.
Wasruimte voorzien van een wma.
Derde verdieping:
Zeer ruime woon-eetkamer voorzien van een moderne plavuizen vloer. Deze ruimte is tevens voorzien van een moderne keuken met een kookeiland en heeft de benodigde inbouwapparatuur. Onder de trap is kastruimte gecreëerd en verder heeft de ruimte een balkon aan de achterzijde alsmede aan de voorzijde die via openslaande deuren te bereiken zijn.
Vierde verdieping:
Deze verdieping is zeer ruim opgezet en is te gebruiken als een werk/slaap of verblijfsruimte. Er is een aparte doucheruimte met wastafel en inloopdouche en een aparte toiletruimte. De ruimte heeft twee dakkapellen, inbouw spots en een vast bureau.
Vliering:
Deze is bereikbaar via een Vlizo-trap. De nokhoogte is ca. 3,09 m1. Deze ruimte wordt gebruikt als bergruimte en voor de opstelling van den cv-ketel.
Bijzonderheden:
– Woonoppervlakte: 200 m2
– Inhoud 724 m3
– Bouwjaar 1927
– Eigen grond
– Voorzien van merendeel dubbel glas
– Het is een Gemeentelijk Monument
– Bijdrage VVE is € 361,56 per maand is inclusief bijdrage reservefonds
– CV-ketel is een Remeha Atlanta 2022

Meer weten over deze woning?
Kenmerken
Algemeen
- Status Beschikbaar
- Vraagprijs € 775.000 k.k.
- Koopprijs € 775.000 k.k.
- Aanvaarding In overleg
- Bijzonderheden Monumentaal pand
Woningkenmerken
- Woonoppervlakte 200 m2
- Overige inpandige ruimte 17 m2
- Inhoud 724 m3
- Bouwjaar 1927
- Soort bouw Bestaande bouw
- Daktype Zadeldak
Buitenruimtes & Tuin
- Type buitenruimte(s) Geen tuin
Parkeren
- Parkeerfaciliteiten Openbaar parkeren, Betaald parkeren, Parkeervergunningen
Indeling & voorzieningen
- Soort appartement Bovenwoning
- Aantal verdiepingen 5
- Slaapkamers 2
- Aantal kamers 4
- Aantal badkamers 2
- Voorzieningen Mechanische ventilatie
Energie & installaties
- Energieklasse B
- Energiedatum 2035-08-07
- Isolatie Dakisolatie, Gedeeltelijk dubbel glas
- Verwarming Cv ketel
- Warm water Cv ketel
- CV combiketel 1
- CV type Remeha atlanta
- CV bouwjaar 2022
- CV brandstof Gas
- CV eigendom Eigendom
Schuur, berging & garage
- Oppervlakte gebouwgebonden buitenruimte 14
- Garage soorten Geen garage


















































